Van 't Hoffstraat

20A

LEIDEN

€ 425.000
Verkocht

Van 't Hoffstraat

20A

LEIDEN

€ 425.000
Verkocht

In de zeer gewilde woonwijk “Professorenwijk” in Leiden ligt dit royale VIJF-KAMER bovenhuis met grote zolder en berging. Deze jaren 30 woning beschikt nog over originele details zoals glas in lood, een kamer en-suite. Sfeervol en erg leuk!! Dit bovenhuis beschikt over een zonnig balkon en in een wijk die ademt nog altijd de tijd van toen uit. Echt leuk! Pak je de fiets dan ben je zo in het centrum van Leiden. Met de benenwagen zo’n 10 minuten lopen. Van ’t Hoffstraat is een gezellige, rustige straat in de uitermate populaire Professorenwijk. De woning heeft een goede ligging nabij diverse buurtwinkels, basisscholen en NS station Lammenschans. Op enkele fietsminuten bevinden zich de historische binnenstad met leuke winkels, terrassen, restaurants en musea, park Roomburg, hockey- en tennisvelden en middelbare scholen.

Indeling:

Begane grond: entree met meterkast, trap naar 1e verdieping en berging aan de achterzijde van de woning die ruimte bied aan meerdere fietsen.

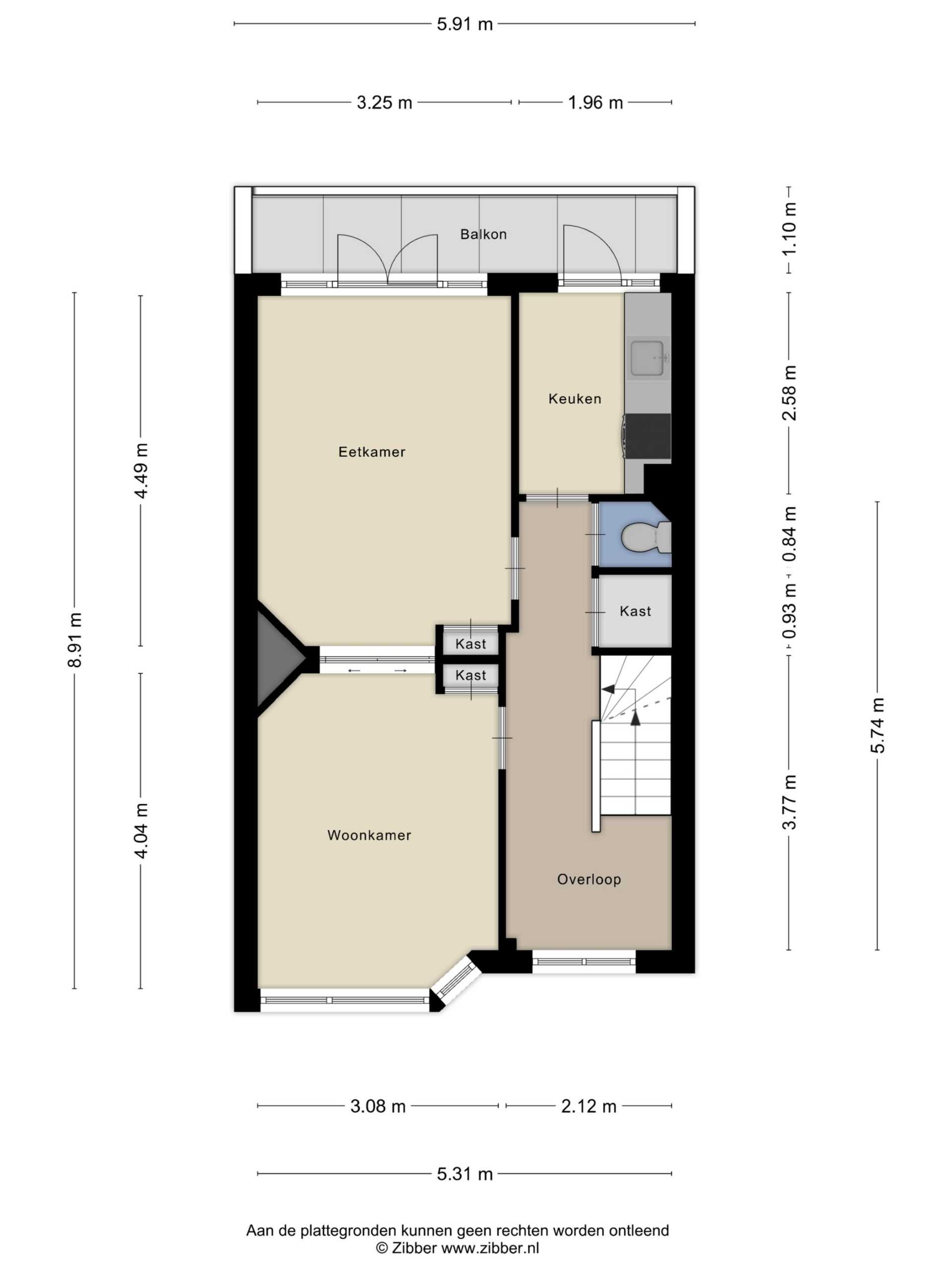
1e verdieping: overloop met toilet, inbouwkast en toegang tot de sfeervolle, ruime en vooral lichte woonkamer die nog beschikt over de originele en suite deuren. Via de woonkamer en de keuken is het zonnige balkon te bereiken dat op het oosten ligt.

2e verdieping: grote overloop met toegang tot twee slaapkamers, badkamer met toilet en bad, aansluiting voor wasmachine en vaste trap naar de zolder.

Zolder: de ruime zolder beschikt over twee grote dakramen waardoor het perfect al slaapkamer kan fungeren.

Vraagprijs: € 425.000, – K.K. | Oplevering: in overleg

VVE Bijdrage: € 27,50 per maand (voor de opstalverzekering)

Ouderdom-, asbest- en niet zelf bewonersclausule zijn van toepassing

NEN 2580 meetrapportage is beschikbaar.

Deze informatie is door ons met de nodige zorgvuldigheid samengesteld. Onzerzijds wordt echter geen enkele aansprakelijkheid aanvaard voor enige onvolledigheid, onjuistheid of anderszins, dan wel de gevolgen daarvan. Alle opgegeven maten en oppervlakten zijn indicatief. Van toepassing zijn de VBO voorwaarden.

De Meetinstructie is gebaseerd op de NEN2580. De Meetinstructie is bedoeld om een meer eenduidige manier van meten toe te passen voor het geven van een indicatie van de gebruiksoppervlakte. De Meetinstructie sluit verschillen in meetuitkomsten niet volledig uit, door bijvoorbeeld interpretatieverschillen, afrondingen of beperkingen.

Overdracht

Vraagprijs
€ 425.000
Status
VERKOCHT
Aanvaarding
In overleg
Aangeboden sinds
3 november 2025
Laatste wijziging
2 januari 2026

Bouw

Type object
Appartement
Soort bouw
Bestaande bouw
Bouwjaar
1936
Type dak
Zadeldak
Dakbedekking
Pannen
Isolatievormen
Dakisolatie, Grotendeels dubbelglas
Voorzieningen
Tv kabel, Glasvezel kabel, Natuurlijke ventilatie

Ligging

Ligging
Aan rustige weg, In woonwijk

Oppervlaktes en inhoud

Woonoppervlakte
94 m2
Inhoud
310 m3
Oppervlakte externe bergruimte
2 m2
Oppervlakte gebouwgebonden buitenruimte
6 m2

Indeling

Aantal bouwlagen
3
Aantal kamers
6

Energieverbruik

Energielabel
C

CV ketel

Type
Remeha avanta cw4
Warmtebron
Gas
Bouwjaar
2013
Eigendom
Eigendom

Plan bezichtiging