Anthonie van Dijcklaan

2

VOORSCHOTEN

€ 539.000

Anthonie van Dijcklaan

2

VOORSCHOTEN

€ 539.000

In de woonwijk “Vlietwijk” ligt deze zeer leuke en interessante VIJF-KAMER eindwoning met ruime voortuin en zonnige achtertuin op het zuidwesten. Een rustige plekje met veel ruimte, waar je makkelijk je auto kunt parkeren. De woning is netjes en goed onderhouden. Indien wenselijk zou je de keuken kunnen vernieuwen. De huidige eigenaren hebben hier met veel plezier gewoond maar nu is het tijd voor de volgende stap. Stap jij in deze woning?

Leuk om te weten: deze woning ligt op loopafstand van de Vliet en recreatiegebied ‘Vlietland’ en zeer gunstig gelegen ten opzichte van vele faciliteiten zoals scholen, openbaar vervoer, sportverenigingen, uitvalswegen en het gezellige centrum van Voorschoten met een breed aanbod van winkels en restaurants.

Indeling:
Begane grond: Voortuin en entree van de woning met een garderobe, meterkast, een separaat toilet en trap naar de eerste verdieping. Vanuit de hal een deur naar de woonkamer. De woonkamer, die uitkijkt op de voortuin, loopt over naar het eetgedeelte. Vanuit de eethoek bereik je via de keuken de deur naar de tuin.

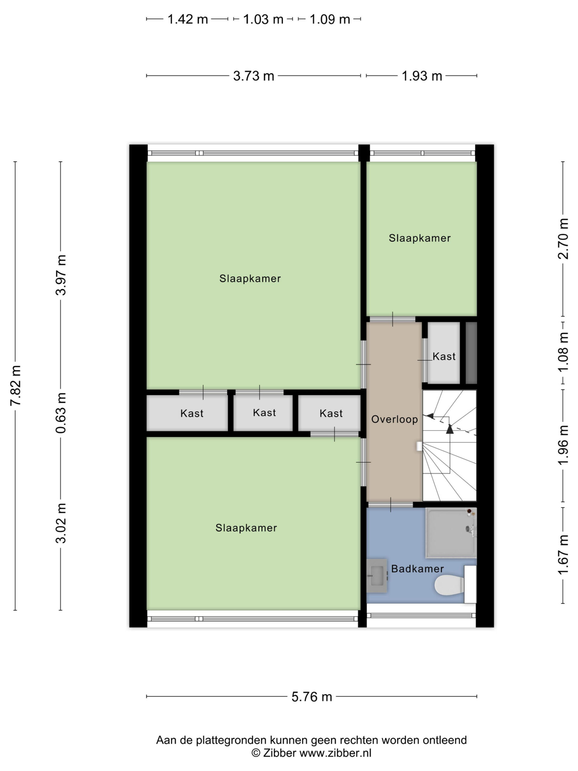
Eerste verdieping: Overloop met diverse deuren naar maar liefst drie slaapkamers. Slaapkamer een en twee kijken uit op de achtertuin, en slaapkamer drie kijkt uit op de voortuin. De moderne badkamer is voorzien van een toilet, was meubel en inloopdouche. Trap naar de tweede verdieping.

Tweede verdieping: Overloop met wasmachine aansluiting en toegang tot zeer ruime slaapkamer vier.

Tuin: grote tuin met verlaging, waardoor je twee zitruimtes creëert, een stenen berging en achterom.
Voortuin (NO)
Achtertuin (ZW)

Kenmerken:
Woonoppervlakte: ca. 110 m²
Perceel: ca. 156 m²
Bouwjaar: 1962
CV: Vaillant december 2014

Vraagprijs: € 539.000,- K.K. | Oplevering: in overleg

NEN 2580 meetrapportage is beschikbaar.

Deze informatie is door ons met de nodige zorgvuldigheid samengesteld. Onzerzijds wordt echter geen enkele aansprakelijkheid aanvaard voor enige onvolledigheid, onjuistheid of anderszins, dan wel de gevolgen daarvan. Alle opgegeven maten en oppervlakten zijn indicatief. Van toepassing zijn de VBO voorwaarden.

De Meetinstructie is gebaseerd op de NEN2580. De meetinstructie is bedoeld om een meer eenduidige manier van meten toe te passen voor het geven van een indicatie van de gebruiksoppervlakte. De meetinstructie sluit verschillen in meetuitkomsten niet volledig uit, door bijvoorbeeld interpretatieverschillen, afrondingen of beperkingen bij het kadaster.

Overdracht

Vraagprijs
€ 539.000
Status
BESCHIKBAAR
Aanvaarding
In overleg
Aangeboden sinds
24 oktober 2025
Laatste wijziging
7 november 2025

Bouw

Type object
Woonhuis
Soort bouw
Bestaande bouw
Bouwjaar
1962
Type dak
Zadeldak
Dakbedekking
Bitumineuze dakbedekking
Isolatievormen
Dakisolatie, Muurisolatie, Dubbel glas
Voorzieningen

Ligging

Ligging

Tuin

Type
Achtertuin
Staat
Normaal
Oriëntering
Zuidwest
Oppervlakte
47 m2
Achterom
1

Oppervlaktes en inhoud

Perceeloppervlakte
156 m2
Woonoppervlakte
110 m2
Inhoud
388 m3
Oppervlakte externe bergruimte
8 m2
Oppervlakte gebouwgebonden buitenruimte
1 m2

Indeling

Aantal kamers
5

Energieverbruik

Energielabel
C

CV ketel

Type
Vaillant
Warmtebron
Gas
Bouwjaar
2014
Eigendom
Eigendom
Combiketel
1

Plan bezichtiging